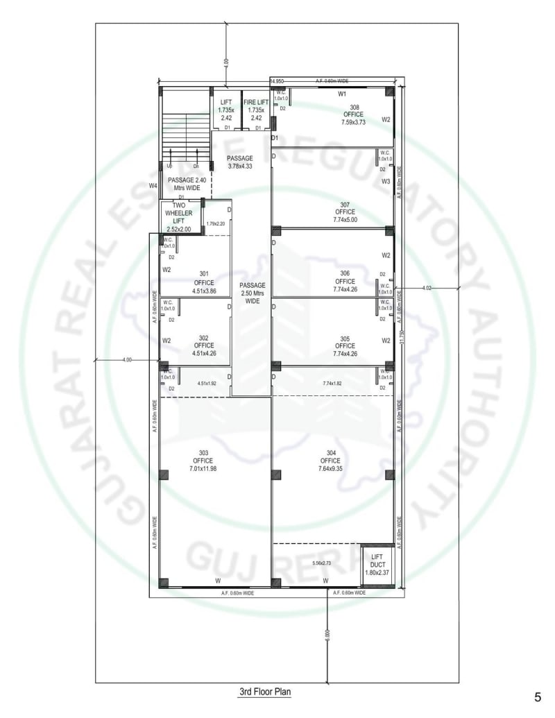
The City Centre is a commercial real estate project developed by Arc Infrawell, strategically located at Arc Infrawell , Ward No.12 Sheet No.126, City Survey No.2136, Patel Colony Street No. 02 Corner, P N Marg Jamnagar, Jamnagar, 361008. This RERA-registered property (Registration No: PR/GJ/JAMNAGAR/JAMNAGAR/Jamnagar Municipal Corporation/CAA15716/190825/311227). It Is A Commercial Project Having Total 40 Inventory. The Project Is Located In Jamnagar.
The project is professionally designed by Niravkumar Sureshbhai Khant and engineered by Manish Vinaykant Doshi, ensuring quality construction and adherence to all regulatory standards. For more information about this property, interested buyers can contact Arc Infrawell directly at 9898798063.













